Nowe boisko
Czwartek 17 stycznia 2013
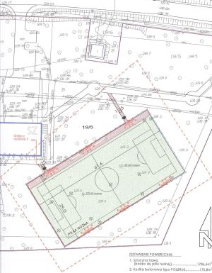
W Urzędzie Marszałkowskim Województwa Lubuskiego burmistrz Sulęcina Michał Deptuch podpisał umowę na dofinansowanie zadania pn. „Budowa boiska do piłki nożnej przy Szkole Podstawowej w Wędrzynie”.
Wartość inwestycji szacowana jest na ponad 640 tys. zł, w tym dofinansowanie ze środków Stowarzyszenia „Kraina Szlaków Turystycznych” Lokalna Grupa Działania pokryje 80 proc. wartości projektu, a więc ponad 416 tys. zł. W ramach inwestycji wybudowane zostanie boisko do piłki nożnej o wymiarach 56 m x 26 m z nawierzchnią z trawy syntetycznej oraz trybuny. Ponadto w ramach projektu obiekt zyska ogrodzenie, oświetlenie oraz monitoring. Boisko do piłki nożnej w Wędrzynie będzie ogólnodostępne. Zakończenie realizacji inwestycji zaplanowano na wrzesień 2013 r.
(M.Sz.)






